Overview
Discover the Gusto, a wood-burning cookstove that embodies the joy of living. Imagine a room where the crackling flames dance behind a glass door, where every meal is crafted with a touch of magic, and where the sleek design seamlessly blends into your decor. Designed for spaces up to 2,100 ft², it combines performance and aesthetics. The spacious stainless steel oven of the Gusto ensures even heat distribution, with a two-position rack and a delicate built-in thermometer for constant temperature monitoring. The doors and top of the oven are made of cast iron, guaranteeing exceptional durability and heat retention. Offering the ability to boil a liter of water in less than 20 minutes, this cookstove guarantees a wide range of cooking possibilities. Additionally, its optimized clearances make it easy to install in any home.
With its glass door offering a stunning view of the flames, the Gusto instantly creates a cozy ambiance. For a touch of personalization, it is possible to add a central stainless steel band, giving your appliance a distinctive look. The wooden handles allow for effortless use thanks to a smooth and precise mechanism. Combining practicality and elegance, the Osburn wood-burning cookstove is the ideal companion to enrich your culinary moments while warming your home with style.
Features:
- Non-catalytic combustion technology
- Stainless steel secondary air / gas combustion system (improves efficiency)
- Air-wash glass: helps keep viewing window clean
- Refractory brick–lined firebox for better heat distribution
- Up to ~2,100 ft² heating area
- Built-in stainless steel oven: ensures more even heat distribution
- Two position oven rack
- Built-in thermometer in oven door to monitor temperature
- Cast iron doors and top for durability and heat retention
- Ability to boil 1 L of water in < 20 minutes (strong cooking performance)
- Approved for mobile home installation (with fresh air intake)
- Limited lifetime warranty
Specifications:
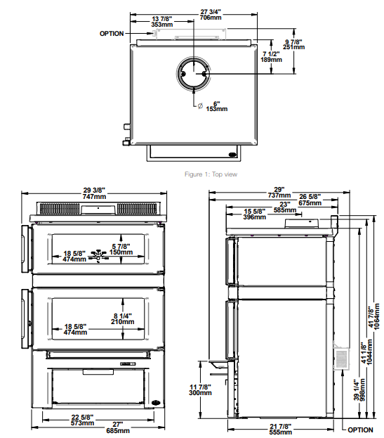
- Overall dimensions: 41 7/8″ H × 29 3/8″ W × 29″ D
- Firebox internal dimensions: 11 7/8″ H × 21″ W × 16 1/2″ D
- Door opening size: 9″ H × 20″ W
- Glass window (ceramic glass): approx. 18 5/8″ × 8 1/4″
- 575 Lbs
- Approximate emissions: 2.3 g/h (particulate)
- Certified / listed to UL 1482, UL 737 (US)
- Maximum heat output: 75,000 BTU/h
- Burn time: up to 8 hours
- Firebox volume: 2.26 cu ft

Product Resources
Discover the Gusto, a wood-burning cookstove that embodies the joy of living. Imagine a room where the crackling flames dance behind a glass door, where every meal is crafted with a touch of magic, and where the sleek design seamlessly blends into your decor. Designed for spaces up to 2,100 ft², it combines performance and aesthetics. The spacious stainless steel oven of the Gusto ensures even heat distribution, with a two-position rack and a delicate built-in thermometer for constant temperature monitoring. The doors and top of the oven are made of cast iron, guaranteeing exceptional durability and heat retention. Offering the ability to boil a liter of water in less than 20 minutes, this cookstove guarantees a wide range of cooking possibilities. Additionally, its optimized clearances make it easy to install in any home.
With its glass door offering a stunning view of the flames, the Gusto instantly creates a cozy ambiance. For a touch of personalization, it is possible to add a central stainless steel band, giving your appliance a distinctive look. The wooden handles allow for effortless use thanks to a smooth and precise mechanism. Combining practicality and elegance, the Osburn wood-burning cookstove is the ideal companion to enrich your culinary moments while warming your home with style.
Features:
- Non-catalytic combustion technology
- Stainless steel secondary air / gas combustion system (improves efficiency)
- Air-wash glass: helps keep viewing window clean
- Refractory brick–lined firebox for better heat distribution
- Up to ~2,100 ft² heating area
- Built-in stainless steel oven: ensures more even heat distribution
- Two position oven rack
- Built-in thermometer in oven door to monitor temperature
- Cast iron doors and top for durability and heat retention
- Ability to boil 1 L of water in < 20 minutes (strong cooking performance)
- Approved for mobile home installation (with fresh air intake)
- Limited lifetime warranty
Specifications:
- Overall dimensions: 41 7/8″ H × 29 3/8″ W × 29″ D
- Firebox internal dimensions: 11 7/8″ H × 21″ W × 16 1/2″ D
- Door opening size: 9″ H × 20″ W
- Glass window (ceramic glass): approx. 18 5/8″ × 8 1/4″
- 575 Lbs
- Approximate emissions: 2.3 g/h (particulate)
- Certified / listed to UL 1482, UL 737 (US)
- Maximum heat output: 75,000 BTU/h
- Burn time: up to 8 hours
- Firebox volume: 2.26 cu ft

Education
Discover the Gusto, a wood-burning cookstove that embodies the joy of living. Imagine a room where the crackling flames dance behind a glass door, where every meal is crafted with a touch of magic, and where the sleek design seamlessly blends into your decor. Designed for spaces up to 2,100 ft², it combines performance and aesthetics. The spacious stainless steel oven of the Gusto ensures even heat distribution, with a two-position rack and a delicate built-in thermometer for constant temperature monitoring. The doors and top of the oven are made of cast iron, guaranteeing exceptional durability and heat retention. Offering the ability to boil a liter of water in less than 20 minutes, this cookstove guarantees a wide range of cooking possibilities. Additionally, its optimized clearances make it easy to install in any home.
With its glass door offering a stunning view of the flames, the Gusto instantly creates a cozy ambiance. For a touch of personalization, it is possible to add a central stainless steel band, giving your appliance a distinctive look. The wooden handles allow for effortless use thanks to a smooth and precise mechanism. Combining practicality and elegance, the Osburn wood-burning cookstove is the ideal companion to enrich your culinary moments while warming your home with style.
Features:
- Non-catalytic combustion technology
- Stainless steel secondary air / gas combustion system (improves efficiency)
- Air-wash glass: helps keep viewing window clean
- Refractory brick–lined firebox for better heat distribution
- Up to ~2,100 ft² heating area
- Built-in stainless steel oven: ensures more even heat distribution
- Two position oven rack
- Built-in thermometer in oven door to monitor temperature
- Cast iron doors and top for durability and heat retention
- Ability to boil 1 L of water in < 20 minutes (strong cooking performance)
- Approved for mobile home installation (with fresh air intake)
- Limited lifetime warranty
Specifications:
- Overall dimensions: 41 7/8″ H × 29 3/8″ W × 29″ D
- Firebox internal dimensions: 11 7/8″ H × 21″ W × 16 1/2″ D
- Door opening size: 9″ H × 20″ W
- Glass window (ceramic glass): approx. 18 5/8″ × 8 1/4″
- 575 Lbs
- Approximate emissions: 2.3 g/h (particulate)
- Certified / listed to UL 1482, UL 737 (US)
- Maximum heat output: 75,000 BTU/h
- Burn time: up to 8 hours
- Firebox volume: 2.26 cu ft






