Overview
With the best fit and finish in the industry, Mason-lite offers fireplaces in standard sizes of 33″, 39″, 44″, 49″, 63″, 75”, and a 43” See-through; combined with a vast custom-size fireplace library. And, by just adding an 8” height kit, you can have the tall and shallow look of a Rumford-style fireplace. Mason-Lite fireplaces are approved for multi-story and combustible floor installations all the while meeting UL127, UL103 safety standards.
**If height kit is chosen, extended brick panels are required**
Features:
-
EPA Phase II qualified with PureBurn
-
50% Lighter than traditional site-built masonry fireplaces
-
Superior thermal efficiencies with the highest resistance strength-up to 1700 Degrees Fahrenheit at 28 days
-
Meets or exceeds federal, state, and local construction building code requirements
-
Limited Lifetime warranty
- USA and Canada approved
Specifications:
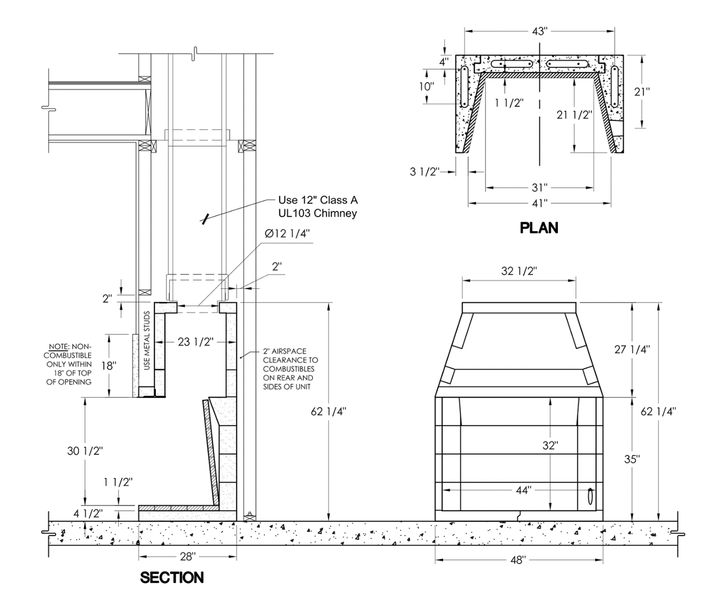
| Finished Opening Width | 41" |
| Finished Opening Height | 30.5" |
| Finished Opening Depth | 21.5" |
| Total Unit Height | 62.25" |
| Footprint | 48" x 28" |
| Flue Diameter - Class A | 14" ID |
| Clearance to Combustibles* (Sides and Back) | 2" |
| Framing Width | 52" |
| Framing Height | 64 1/4" |
| Floor Area(48x28) | 9.33 sf |
| Framing Depth | 30" |
| Fireplace Weight | 1726 lbs. |

Product Resources
With the best fit and finish in the industry, Mason-lite offers fireplaces in standard sizes of 33″, 39″, 44″, 49″, 63″, 75”, and a 43” See-through; combined with a vast custom-size fireplace library. And, by just adding an 8” height kit, you can have the tall and shallow look of a Rumford-style fireplace. Mason-Lite fireplaces are approved for multi-story and combustible floor installations all the while meeting UL127, UL103 safety standards.
**If height kit is chosen, extended brick panels are required**
Features:
-
EPA Phase II qualified with PureBurn
-
50% Lighter than traditional site-built masonry fireplaces
-
Superior thermal efficiencies with the highest resistance strength-up to 1700 Degrees Fahrenheit at 28 days
-
Meets or exceeds federal, state, and local construction building code requirements
-
Limited Lifetime warranty
- USA and Canada approved
Specifications:
| Finished Opening Width | 41" |
| Finished Opening Height | 30.5" |
| Finished Opening Depth | 21.5" |
| Total Unit Height | 62.25" |
| Footprint | 48" x 28" |
| Flue Diameter - Class A | 14" ID |
| Clearance to Combustibles* (Sides and Back) | 2" |
| Framing Width | 52" |
| Framing Height | 64 1/4" |
| Floor Area(48x28) | 9.33 sf |
| Framing Depth | 30" |
| Fireplace Weight | 1726 lbs. |

Education
With the best fit and finish in the industry, Mason-lite offers fireplaces in standard sizes of 33″, 39″, 44″, 49″, 63″, 75”, and a 43” See-through; combined with a vast custom-size fireplace library. And, by just adding an 8” height kit, you can have the tall and shallow look of a Rumford-style fireplace. Mason-Lite fireplaces are approved for multi-story and combustible floor installations all the while meeting UL127, UL103 safety standards.
**If height kit is chosen, extended brick panels are required**
Features:
-
EPA Phase II qualified with PureBurn
-
50% Lighter than traditional site-built masonry fireplaces
-
Superior thermal efficiencies with the highest resistance strength-up to 1700 Degrees Fahrenheit at 28 days
-
Meets or exceeds federal, state, and local construction building code requirements
-
Limited Lifetime warranty
- USA and Canada approved
Specifications:
| Finished Opening Width | 41" |
| Finished Opening Height | 30.5" |
| Finished Opening Depth | 21.5" |
| Total Unit Height | 62.25" |
| Footprint | 48" x 28" |
| Flue Diameter - Class A | 14" ID |
| Clearance to Combustibles* (Sides and Back) | 2" |
| Framing Width | 52" |
| Framing Height | 64 1/4" |
| Floor Area(48x28) | 9.33 sf |
| Framing Depth | 30" |
| Fireplace Weight | 1726 lbs. |






