Overview
The Saint-Laurent wood fireplace stands out with its linear design and wide panoramic glass surface, offering an exceptional view of the flames. Designed to maximize the visual experience, the elongated rectangular shape of the Saint-Laurent adds a modern and elegant touch to any interior. The highlight of this wood fireplace is its ingenious guillotine-style door and fire screen system. Designed with exceptional attention to detail and superior materials, this mechanism allows for smooth and effortless operation. The door and fire screen, equipped with a removable handle, discreetly slide under the hearth, providing easy and secure access to the fire.
Features:
- Non-catalytic combustion
- Guillotine sliding doors, steel frame with ceramic glass
- Moulded refractory brick lining inside the firebox
- Cast iron andirons included
- 1,000 ft² heating area
- Safety / regulatory certifications: UL 127 (US)
- Limited lifetime warranty
Specifications:
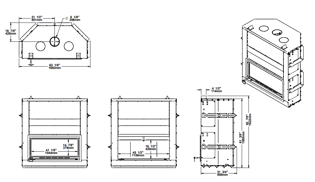
- Overall Dimensions: 63 1⁄8″ W × 63 3⁄4″ H × 31 3⁄4″ D
- Internal Firebox Dimensions: 31 7⁄8″ W × 23 1⁄4″ H × 10 3⁄4″ D
- Door Opening: 44 1⁄2″ W × 15 1⁄2″ H
- Glass Surface: 41 1⁄8″ W × 14 7⁄8″ H\
- Framing Dimensions: Please see manual for complete framing guidlines
- Shipping weight: ~ 765 lb
- Chimney / flue outlet: 8″ diameter
- Minimum chimney height: 15 ft
- Overall firebox volume: 6.4 cu. ft
- Burn rate: > 5 kg/h (> 11 lb/h)

Product Resources
The Saint-Laurent wood fireplace stands out with its linear design and wide panoramic glass surface, offering an exceptional view of the flames. Designed to maximize the visual experience, the elongated rectangular shape of the Saint-Laurent adds a modern and elegant touch to any interior. The highlight of this wood fireplace is its ingenious guillotine-style door and fire screen system. Designed with exceptional attention to detail and superior materials, this mechanism allows for smooth and effortless operation. The door and fire screen, equipped with a removable handle, discreetly slide under the hearth, providing easy and secure access to the fire.
Features:
- Non-catalytic combustion
- Guillotine sliding doors, steel frame with ceramic glass
- Moulded refractory brick lining inside the firebox
- Cast iron andirons included
- 1,000 ft² heating area
- Safety / regulatory certifications: UL 127 (US)
- Limited lifetime warranty
Specifications:
- Overall Dimensions: 63 1⁄8″ W × 63 3⁄4″ H × 31 3⁄4″ D
- Internal Firebox Dimensions: 31 7⁄8″ W × 23 1⁄4″ H × 10 3⁄4″ D
- Door Opening: 44 1⁄2″ W × 15 1⁄2″ H
- Glass Surface: 41 1⁄8″ W × 14 7⁄8″ H\
- Framing Dimensions: Please see manual for complete framing guidlines
- Shipping weight: ~ 765 lb
- Chimney / flue outlet: 8″ diameter
- Minimum chimney height: 15 ft
- Overall firebox volume: 6.4 cu. ft
- Burn rate: > 5 kg/h (> 11 lb/h)

Education
The Saint-Laurent wood fireplace stands out with its linear design and wide panoramic glass surface, offering an exceptional view of the flames. Designed to maximize the visual experience, the elongated rectangular shape of the Saint-Laurent adds a modern and elegant touch to any interior. The highlight of this wood fireplace is its ingenious guillotine-style door and fire screen system. Designed with exceptional attention to detail and superior materials, this mechanism allows for smooth and effortless operation. The door and fire screen, equipped with a removable handle, discreetly slide under the hearth, providing easy and secure access to the fire.
Features:
- Non-catalytic combustion
- Guillotine sliding doors, steel frame with ceramic glass
- Moulded refractory brick lining inside the firebox
- Cast iron andirons included
- 1,000 ft² heating area
- Safety / regulatory certifications: UL 127 (US)
- Limited lifetime warranty
Specifications:
- Overall Dimensions: 63 1⁄8″ W × 63 3⁄4″ H × 31 3⁄4″ D
- Internal Firebox Dimensions: 31 7⁄8″ W × 23 1⁄4″ H × 10 3⁄4″ D
- Door Opening: 44 1⁄2″ W × 15 1⁄2″ H
- Glass Surface: 41 1⁄8″ W × 14 7⁄8″ H\
- Framing Dimensions: Please see manual for complete framing guidlines
- Shipping weight: ~ 765 lb
- Chimney / flue outlet: 8″ diameter
- Minimum chimney height: 15 ft
- Overall firebox volume: 6.4 cu. ft
- Burn rate: > 5 kg/h (> 11 lb/h)






