Overview
Year after year, the 2000 model remains one of the most popular wood stoves in the Osburn range. In 2018, Osburn redefines the design of this heating appliance and sets new standards for emissions. This new version keeps its 2.4 cubic foot combustion chamber and still offers the same power with an emission performance of around 2.3 g/h. With this model, the 130 CFM fan is still included; unquestionably the best opportunity this season! Its new cast iron door gives a youthful look with elegant lines while retaining the spirit of wood heating. Customize your appliance to suit your décor: refined door overlays, new leg designs, glass ash lip with integrated ash pan; significant innovations for the most seasoned experts.
The Osburn 2000 qualifies for a biomass stove tax credit! What does that mean? How do you take advantage of this credit? Please see our blog explaining the process.
Features:
- Non-catalytic combustion technology
- Firebox lined with refractory bricks for better heat retention and distribution
- Stainless-steel secondary-air system to improve combustion of gases
- Single cast-iron door with glass viewing window
- Glass air-wash system to help keep the viewing window clean
- 130 CFM blower / fan included for heat circulation
- Door overlay and leg/pedestal options available to customize your stove
- Mobile home installation possible (with proper fresh air intake)
- EPA 2020 approved
- Ceramic glass
- Limited lifetime warranty
Specifications:
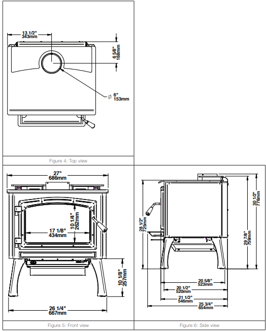
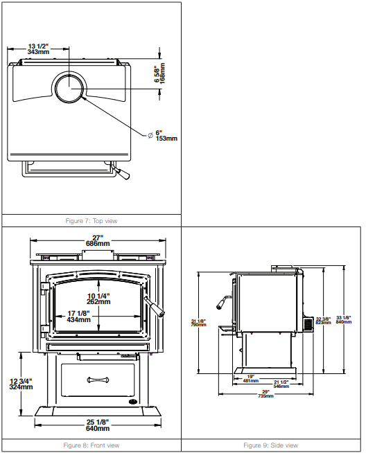
- Overall Dimensions: 27" W x 33 â…›" H x 29" D
- Interior Firebox Dimensions: 21" W x 11 â…ž" H x 16 ¾" D
- Door Opening: 17 ½" W x 9" H
- Glass Surface Dimensions: 17 â…›" W x 10 ¼" H
- Flue / chimney outlet diameter: 6"
- 390 lb
- Recommended heating area: 500 – 2,100 ft²
- Maximum heat output: 75,000 BTU/h
- Firebox volume (loading): ~ 2.4 ft³
- Maximum burn time: up to 8 hours
- Emissions (particulate): ~ 1.54 g/h
- Optimum efficiency: ~ 77 %
- Please see manual for complete clearances to combustibles
Dimensions with Traditional Legs:

Dimensions with Straight Legs:

Dimensions with Pedestal:

Product Resources
Year after year, the 2000 model remains one of the most popular wood stoves in the Osburn range. In 2018, Osburn redefines the design of this heating appliance and sets new standards for emissions. This new version keeps its 2.4 cubic foot combustion chamber and still offers the same power with an emission performance of around 2.3 g/h. With this model, the 130 CFM fan is still included; unquestionably the best opportunity this season! Its new cast iron door gives a youthful look with elegant lines while retaining the spirit of wood heating. Customize your appliance to suit your décor: refined door overlays, new leg designs, glass ash lip with integrated ash pan; significant innovations for the most seasoned experts.
The Osburn 2000 qualifies for a biomass stove tax credit! What does that mean? How do you take advantage of this credit? Please see our blog explaining the process.
Features:
- Non-catalytic combustion technology
- Firebox lined with refractory bricks for better heat retention and distribution
- Stainless-steel secondary-air system to improve combustion of gases
- Single cast-iron door with glass viewing window
- Glass air-wash system to help keep the viewing window clean
- 130 CFM blower / fan included for heat circulation
- Door overlay and leg/pedestal options available to customize your stove
- Mobile home installation possible (with proper fresh air intake)
- EPA 2020 approved
- Ceramic glass
- Limited lifetime warranty
Specifications:
- Overall Dimensions: 27" W x 33 â…›" H x 29" D
- Interior Firebox Dimensions: 21" W x 11 â…ž" H x 16 ¾" D
- Door Opening: 17 ½" W x 9" H
- Glass Surface Dimensions: 17 â…›" W x 10 ¼" H
- Flue / chimney outlet diameter: 6"
- 390 lb
- Recommended heating area: 500 – 2,100 ft²
- Maximum heat output: 75,000 BTU/h
- Firebox volume (loading): ~ 2.4 ft³
- Maximum burn time: up to 8 hours
- Emissions (particulate): ~ 1.54 g/h
- Optimum efficiency: ~ 77 %
- Please see manual for complete clearances to combustibles
Dimensions with Traditional Legs:

Dimensions with Straight Legs:

Dimensions with Pedestal:

Education
Year after year, the 2000 model remains one of the most popular wood stoves in the Osburn range. In 2018, Osburn redefines the design of this heating appliance and sets new standards for emissions. This new version keeps its 2.4 cubic foot combustion chamber and still offers the same power with an emission performance of around 2.3 g/h. With this model, the 130 CFM fan is still included; unquestionably the best opportunity this season! Its new cast iron door gives a youthful look with elegant lines while retaining the spirit of wood heating. Customize your appliance to suit your décor: refined door overlays, new leg designs, glass ash lip with integrated ash pan; significant innovations for the most seasoned experts.
The Osburn 2000 qualifies for a biomass stove tax credit! What does that mean? How do you take advantage of this credit? Please see our blog explaining the process.
Features:
- Non-catalytic combustion technology
- Firebox lined with refractory bricks for better heat retention and distribution
- Stainless-steel secondary-air system to improve combustion of gases
- Single cast-iron door with glass viewing window
- Glass air-wash system to help keep the viewing window clean
- 130 CFM blower / fan included for heat circulation
- Door overlay and leg/pedestal options available to customize your stove
- Mobile home installation possible (with proper fresh air intake)
- EPA 2020 approved
- Ceramic glass
- Limited lifetime warranty
Specifications:
- Overall Dimensions: 27" W x 33 â…›" H x 29" D
- Interior Firebox Dimensions: 21" W x 11 â…ž" H x 16 ¾" D
- Door Opening: 17 ½" W x 9" H
- Glass Surface Dimensions: 17 â…›" W x 10 ¼" H
- Flue / chimney outlet diameter: 6"
- 390 lb
- Recommended heating area: 500 – 2,100 ft²
- Maximum heat output: 75,000 BTU/h
- Firebox volume (loading): ~ 2.4 ft³
- Maximum burn time: up to 8 hours
- Emissions (particulate): ~ 1.54 g/h
- Optimum efficiency: ~ 77 %
- Please see manual for complete clearances to combustibles
Dimensions with Traditional Legs:

Dimensions with Straight Legs:

Dimensions with Pedestal:






